Печь для бани ProMetall Атмосфера L Верде Гватемала
17f15c0e7be5
Доставка в Уфу
Удобство оплаты
Почему звонить в Очаг уже сейчас?
- Единая цена по всей России
- Бесплатная доставка
- Понимаем любой бюджет
- Считаем ВСЕ варианты
- Инструкции и видео для Монтажа
- Доступно, Оперативно, Профессионально
- Более 2 000 монтажей за 17 лет
Примеры работ #Степан_Знает
Характеристики
Общие
Производитель:
Страна-производитель:
Россия
Материал печи:
Чугун
Серия:
Атмосфера
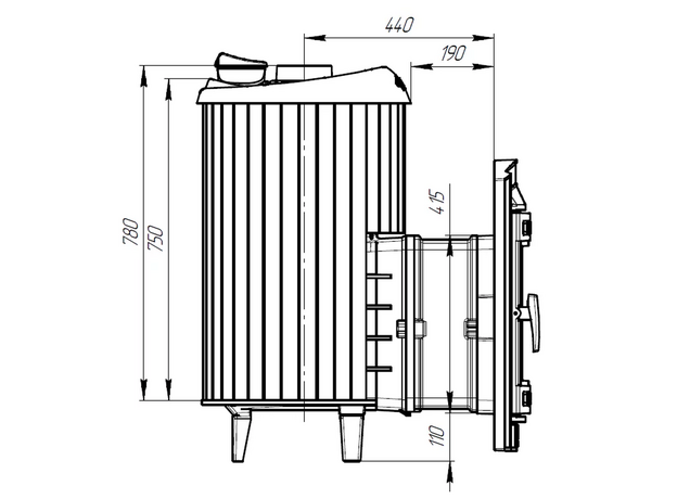
Размеры
Макс. длина поленьев:
45 см
Масса камней:
75 кг
Общая длина:
775
Диаметр дымохода:
115 мм
Общая ширина:
575 мм
Общая высота:
955 мм
Общий вес:
180 кг
Производительность
Время нагрева бани:
80-113
Объём парной:
20 м³
Примерный расход дров:
5-19
Особенности
Бак для воды:
Опционально
Дверь со стеклом:
Закладка дров:
Облицовка из камня:
Верде Гватемала
Особенность конструкции:
Внутренняя каменка
Теплообменник:
Опционально












