Каминная топка Brunner Architecture 45/101/40 Left
f31439e96563
Доставка в Уфу
Удобство оплаты
Почему звонить в Очаг уже сейчас?
- Единая цена по всей России
- Бесплатная доставка
- Понимаем любой бюджет
- Считаем ВСЕ варианты
- Инструкции и видео для Монтажа
- Доступно, Оперативно, Профессионально
- Более 2 000 монтажей за 17 лет
Примеры работ #Степан_Знает
Видео галерея
Описание
Характеристики
Общие
Производитель:
Страна-производитель:
Германия
Остекление:
Материал корпуса:
Материал топки:
- Шамот
Конструкция топки:
Стекло с подъемом вверх:
Да
Боковое стекло:
Слева
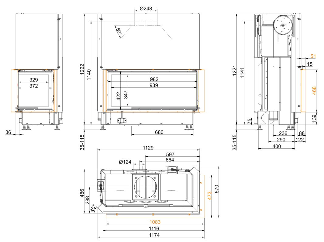
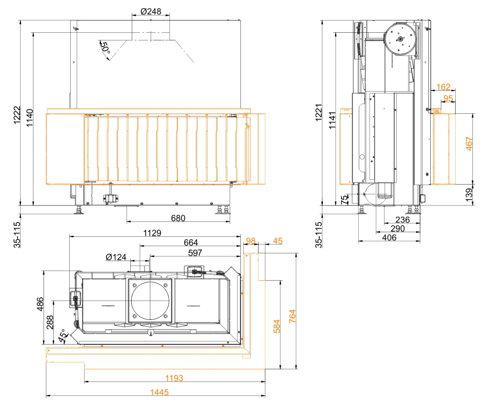
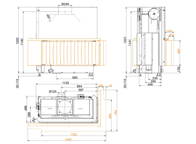
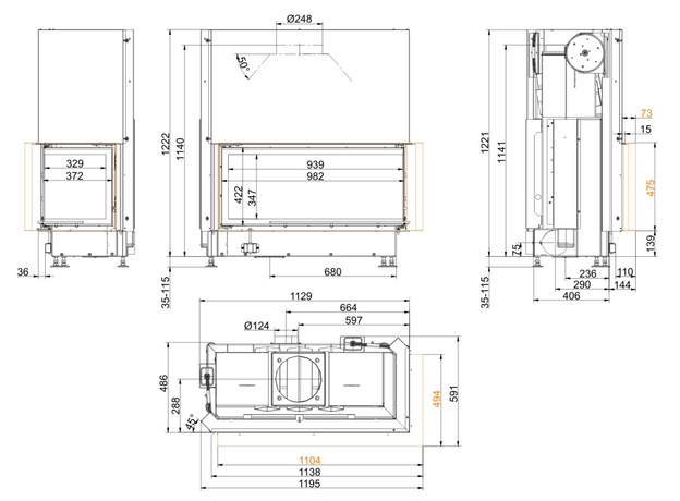
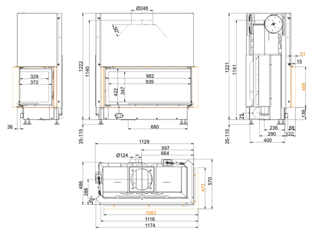
Размеры
Диаметр дымохода:
250 мм
Общая ширина:
1174 мм
Общая глубина:
570 мм
Общая высота:
1222 мм
Общий вес:
240 кг
Высота рамки:
468 мм
Ширина рамки:
982 мм
Производительность
Мощность:
14,5 кВт
КПД:
80%
Площадь отопления:
150 м²
Объем отопления:
375 м³
Использование для отопления:












