Каминная топка KFD Linea H 1050 4.0
057378dad7b9
Доставка в Уфу
Удобство оплаты
Почему звонить в Очаг уже сейчас?
- Единая цена по всей России
- Бесплатная доставка
- Понимаем любой бюджет
- Считаем ВСЕ варианты
- Инструкции и видео для Монтажа
- Доступно, Оперативно, Профессионально
- Более 2 000 монтажей за 17 лет
Примеры работ #Степан_Знает
Видео галерея
Описание
Характеристики
Общие
Производитель:
Страна-производитель:
Польша
Остекление:
Материал корпуса:
Материал топки:
- Вермикулит
Конструкция топки:
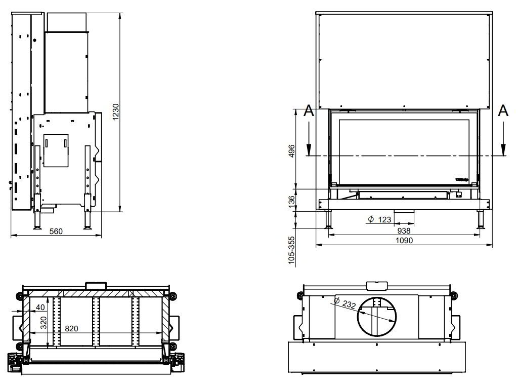
Размеры
Диаметр дымохода:
240 мм
Общая ширина:
1090 мм
Общая глубина:
539 мм
Общая высота:
1340 мм
Общий вес:
250 кг
Производительность
Мощность:
14 кВт
КПД:
81,6%
Площадь отопления:
140 м²
Объем отопления:
350 м³
Использование для отопления:












