Каминная топка Romotop Heat 2G 80.50.01
89cf68eacef1
Доставка в Уфу
Удобство оплаты
Почему звонить в Очаг уже сейчас?
- Единая цена по всей России
- Бесплатная доставка
- Понимаем любой бюджет
- Считаем ВСЕ варианты
- Инструкции и видео для Монтажа
- Доступно, Оперативно, Профессионально
- Более 2 000 монтажей за 17 лет
Примеры работ #Степан_Знает
Видео галерея
Описание
Характеристики
Общие
Производитель:
Страна-производитель:
Чехия
Остекление:
Материал корпуса:
Материал топки:
- Вермикулит
Конструкция топки:
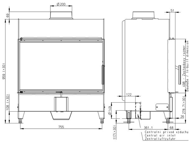
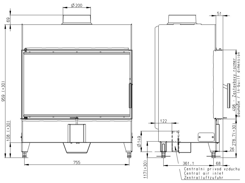
Размеры
Диаметр дымохода:
200 мм
Общая ширина:
799 мм
Общая глубина:
490 мм
Общая высота:
964 мм
Общий вес:
186 кг
Высота рамки:
467 мм
Ширина рамки:
764 мм
Производительность
Мощность:
8,1 кВт
КПД:
81,4%
Площадь отопления:
90 м²
Объем отопления:
225 м³
Использование для отопления:












