Каминная топка Romotop Heat R/L 2G S 60.44.33.13
d3dfce43127a
Доставка в Уфу
Удобство оплаты
Почему звонить в Очаг уже сейчас?
- Единая цена по всей России
- Бесплатная доставка
- Понимаем любой бюджет
- Считаем ВСЕ варианты
- Инструкции и видео для Монтажа
- Доступно, Оперативно, Профессионально
- Более 2 000 монтажей за 17 лет
Примеры работ #Степан_Знает
Видео галерея
Описание
Характеристики
Общие
Производитель:
Страна-производитель:
Чехия
Остекление:
Материал корпуса:
Материал топки:
- Вермикулит
Конструкция топки:
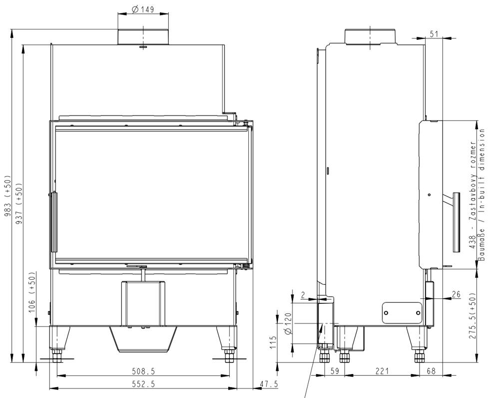
Размеры
Диаметр дымохода:
150 мм
Общая ширина:
600 мм
Общая глубина:
375 мм
Общая высота:
983 мм
Общий вес:
115 кг
Высота рамки:
407 мм
Ширина рамки:
577 мм
Производительность
Мощность:
5,2 кВт
КПД:
85,7%
Площадь отопления:
60 м²
Объем отопления:
150 м³
Использование для отопления:












