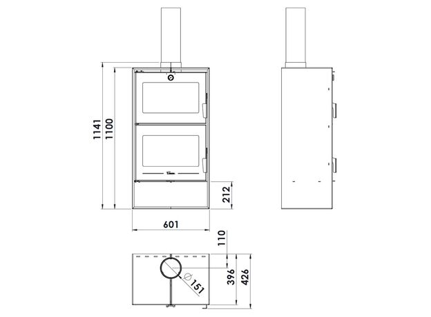
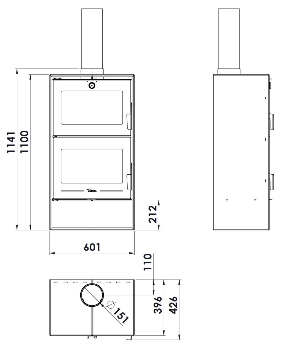
Печь-камин Lacunza Altea
81d3ffbebddb
Доставка в Уфу
Удобство оплаты
Почему звонить в Очаг уже сейчас?
- Единая цена по всей России
- Бесплатная доставка
- Понимаем любой бюджет
- Считаем ВСЕ варианты
- Инструкции и видео для Монтажа
- Доступно, Оперативно, Профессионально
- Более 2 000 монтажей за 17 лет
Примеры работ #Степан_Знает
Видео галерея
Описание
Характеристики
Общие
Производитель:
Lacunza
Страна-производитель:
Испания
Материал отделки:
Материал топки:
- Вермикулит
Производительность
Мощность:
7 кВт
КПД:
87%
Площадь отопления:
70 м²
Объем отопления:
175 м³
Использование для отопления:












